The Vision
At Patterson Farms, our vision is simple and powerful...
...to create a place where life feels more connected, more grounded, and more full of possibility. Rooted in generations of local legacy and brought to life through thoughtful planning, walkable streets, and vibrant shared spaces, Patterson Farms is more than a neighborhood—it’s a reimagining of what home can be. Whether you’re starting out, slowing down, or simply seeking a deeper sense of belonging, Patterson Farms is a place to live well and create community.
"When we purchased the farm from the Patterson Family in 2018, we knew we wanted to preserve the family home and honor the legacy of what came before. we strongly believe that the land will tell you what it wants to be. With Patterson Farms, the direction was clear."
– MELANIE HOENIG, Patterson Farms

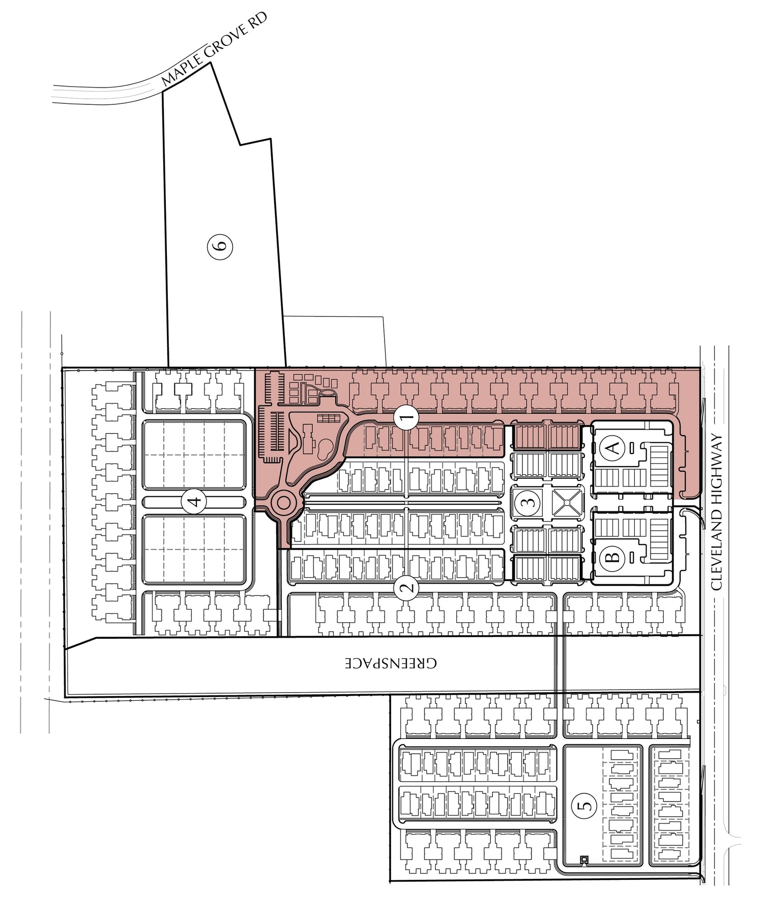
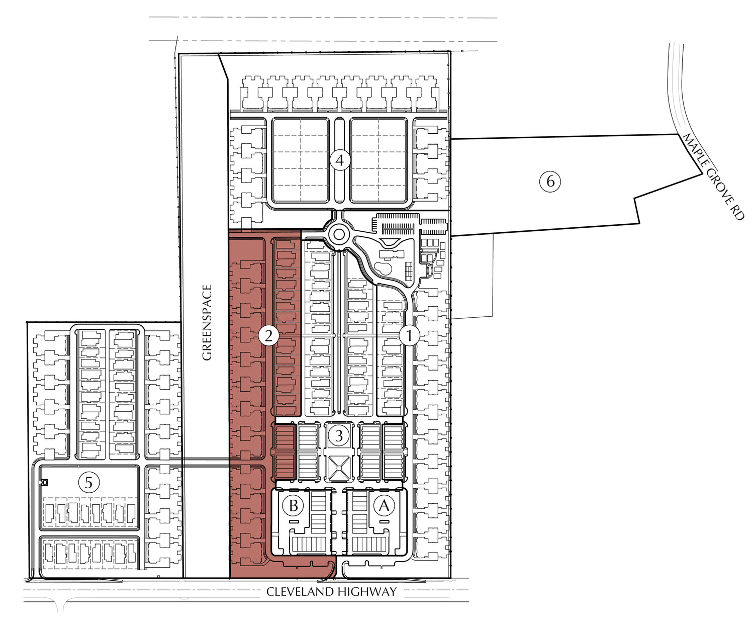
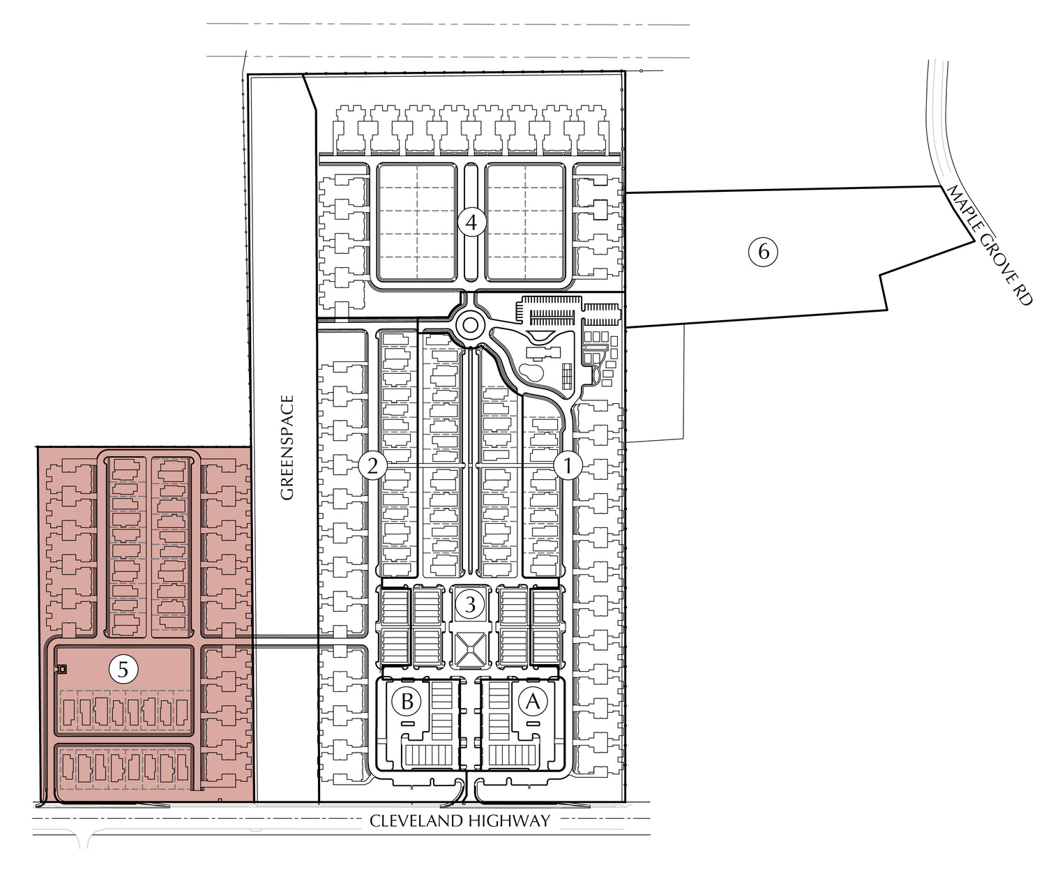
Constuction Phases And Timeline
Phase 1 - Sold Out
Phase 1 included the construction of quads, cottages, townhomes, and the renovation of the former farmhouse, which is now Patterson's Sales & DesignCenter. Phase 1 construction began in September of 2021, and was completed in the Summer of 2022.

Construction Phases And Timeline
Phase 2
In addition to the construction of quads, townhomes, and cottages, additions in Phase 2 included the resort-style swimming pool and distinctive metal silo, the flag pole and roundabout, additional landscaping and green spaces, raised-bed community gardens, and the dog park. Phase 2 is nearing completion.

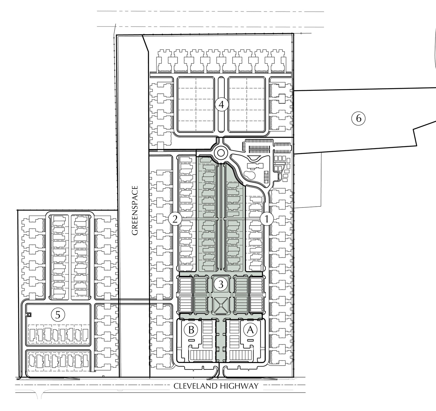
Construction Phases And Timeline
Phase 3
Phase 3 includes the construction of unique new cottages along the main 'boulevard', with new interior features and fenced side yards, as well as additional townhomes. The planned town square and all architectural and engineering work for the the planned commercial area are also included in Phase 3.

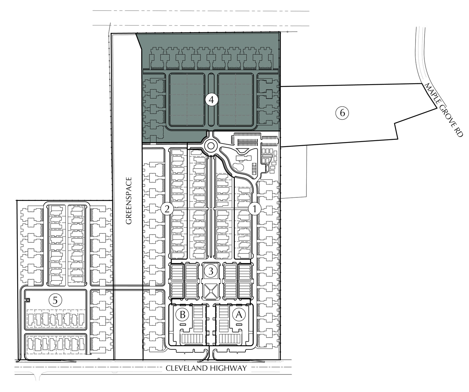
Construction Phases And Timeline
Phase 4
Plans for phase 4 include the construction of additional quads and new estate homes, as well as additional town homes.

Construction Phases And Timeline
Phase 5
Plans for Phase 5 include the construction of cottages and quads.

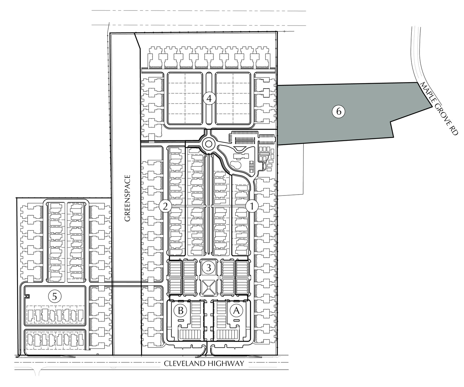
Construction Phases And Timeline
Phase 6
Phase 6 is currently in the planning and design stage.

Construction Phases And Timeline
Phase A
Architectural and engineering work for the first phase of the planned commercial center has been completed. Additional details coming soon.

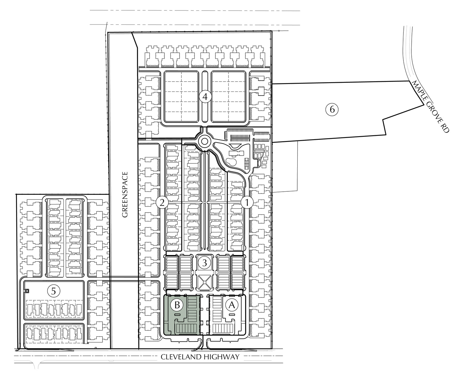
Construction Phases And Timeline
Phase B
Additional information regarding the second phase of the planned commercial center will be released soon.

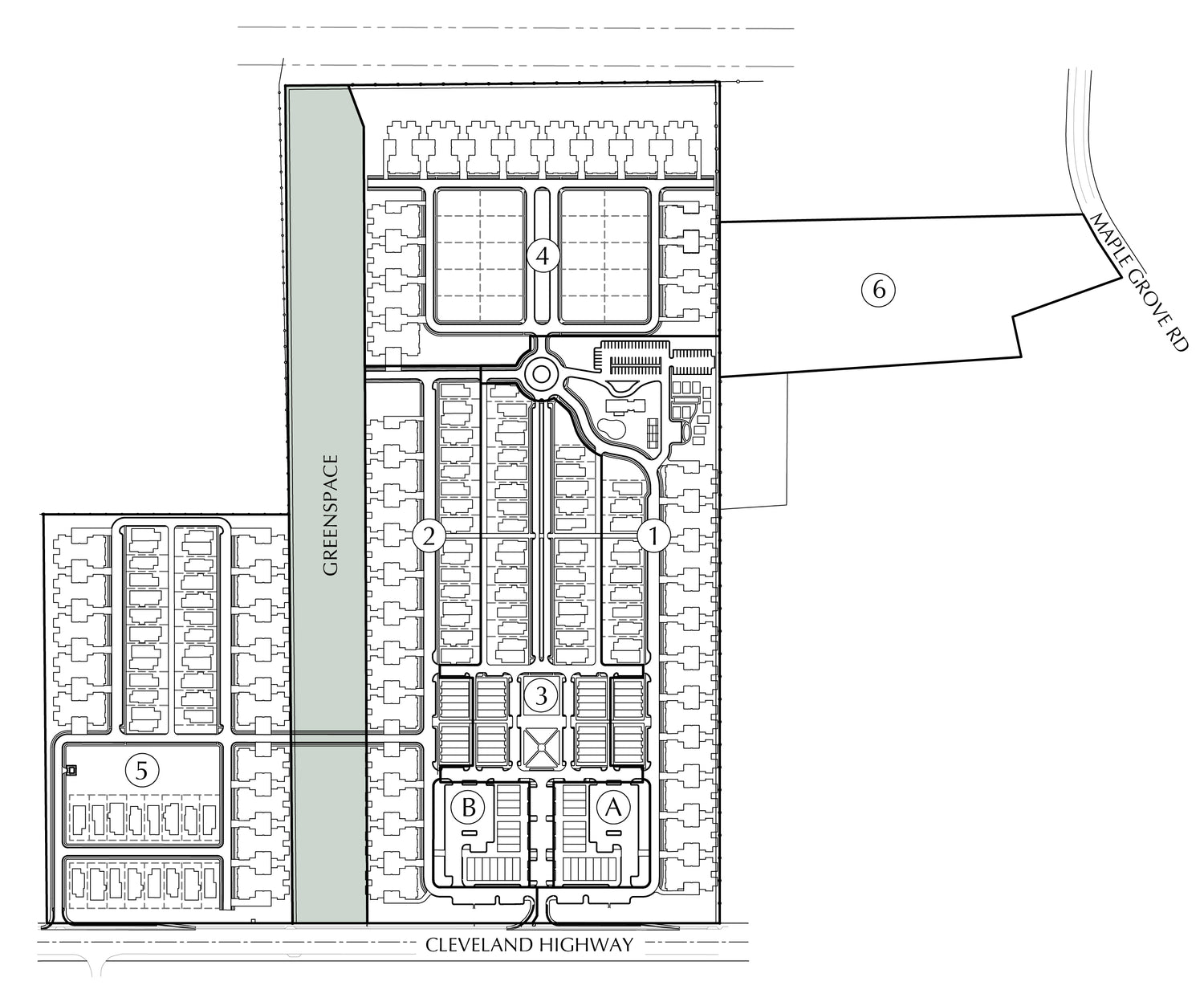
Construction Phases And Timeline
The Meadow
Enjoy 10 acres of green space at Patterson Farms with walking trail, dog park, seating areas, community gardens, and wide open space.
The Land Will Tell You What It Wants To Be.
We set out to build a community like no other. One that honored the land, it's history, and the many stories that made it such a special place. A place where those who call it home would feel a unique sense of belonging.
Paths, sidewalks, friendly streets will connect people. This unique connection will lead to friendships and a newfound sense of discovery. Patterson Farms will become a community filled with infinite possibilities.

Why Northwest Georgia?
Our team has a lifelong connection to this area and its surroundings. We grew up here. We also see a growing need for a community that offers a unique way of living. It is our family and yours. One that lasts forever.